12 Braddon Avenue, SANDY BAY TAS 7005
Description
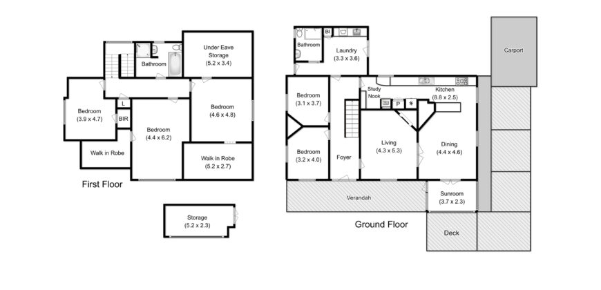
LARGE FAMILY HOME in Sought after cul-de-sac of Sandy Bay
A prestigious address surrounded by well-maintained fenced gardens. Pick an apple as you enter through the kitchen garden from the undercover parking on St Stephens Avenue or enter via the quiet cul-de-sac of Braddon Avenue and onto the sunny veranda. This 2-storey home has gas ducted heating and offers 5 bedrooms plus a study/sunroom with the master bedroom featuring a walk-in robe and stunning views of the Derwent River. A central bathroom services all three bedrooms on this upper level. The lower ground level offers a large lounge with a gas fireplace, a modern kitchen with breakfast bar and plenty of room for a large dining setting. Appliances included are a dishwasher, a gas (mains/natural) stove. Also, on this level you will find two other bedrooms, a second bathroom, separate laundry and a third access to a courtyard. Positioned within easy reach of the shops, cafes and amenities of Sandy Bay, public transport, excellent private and public schools and UTAS, this 1920`cira brick home offers character and history combined with spacious living in an enviable location. Includes gardener once a month. PETS CONSIDERED!
Available 19 January 2026
Address
- Address 12 Braddon Avenue, SANDY BAY TAS
- Country Australia
- Province/State Tasmania
- City/Town Sandy Bay
- Postal code/ZIP 7005
































