9/80-82 Hampden Rd, Battery Point TAS 7004
Description
Superb Executive Apartment
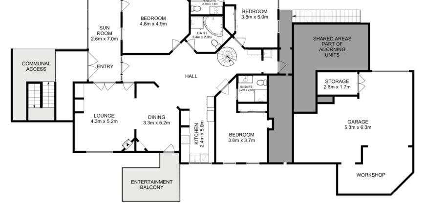
This premium apartment is located in the prestigious suburb of Battery Point, situated in a secure complex, the renowned Queen Alexandra building. Bright & airy and filled throughout with beautiful original features, including high ceilings, leadlight windows, arches and French doors.
The apartment boasts a spacious floor plan with generous, open living areas, including a sunroom, dining, lounge, three well-presented bathrooms, separate laundry & open plan kitchen (with gas stove top, fridge, dishwasher). Accommodation comprises of 3 bedrooms (two with ensuites).
Outside provides a lovely private terrace as well as the perfect summer entertaining space, with amazing views looking out toward the mountain. A stone’s throw to the centre of the historic Battery Point Village and short stroll to the ever-popular Salamanca / waterfront precinct or the CBD.
LEASED
Address
- Address 9/80-82 Hampden Rd, Battery Point TAS
- Country Australia
- Province/State Tasmania
- City/Town Battery Point
- Postal code/ZIP 7004













