Channel Highway, Woodbridge TAS 7162 – Please contact agent for address
Description
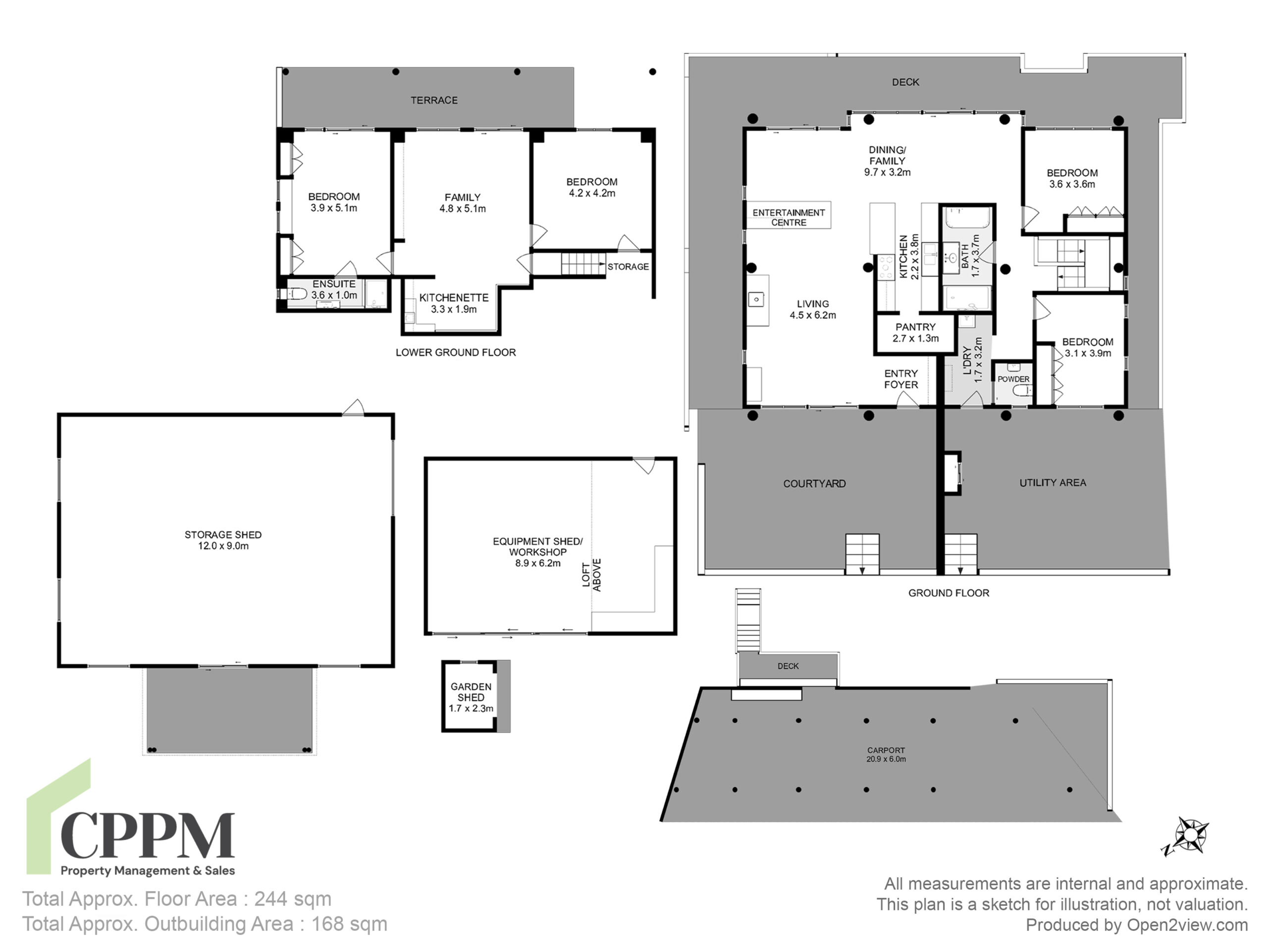
Waterfront acreage with house, huge shed and beach access.
With direct beach access, your own boat mooring, and beautiful water views across the D’Entrecasteaux Channel to Bruny Island, this architecturally designed home invites you to live a quiet life at nature’s pace, without being too far removed from the city. Only 30 – 40 minutes from Hobart, this appealing 5-acre (2.48HA approx.) lifestyle property offers the perfect blend of rural tranquility and coastal luxury. In addition to the main residence, there is a large 12M X 9M storage shed which has potential to be converted into a secondary dwelling (subject to council consent) There is also an additional machinery shed and 5 bay covered parking area for your family and visitors’ vehicles.
Designed for family living or dual accommodation, the spacious layout of the home features multiple living zones, a modern kitchen, and sun-drenched decks that flow seamlessly outdoors. Downstairs is a self-contained retreat with ensuite, kitchenette, and private living area makes the ideal space for guests, extended family to make themselves at home and enjoy the views.
Horse lovers and hobby farmers will appreciate the fenced paddocks, sheds, four dams, and abundant freshwater tanks, while the heritage apple orchard and pesticide-free gardens offer a taste of self-sufficiency.
Woodbridge is a peaceful coastal village on the D’Entrecasteaux Channel, overlooking Bruny Island known for its relaxed lifestyle, creative community, and stunning natural beauty. It offers a perfect blend of rural charm and seaside living. With local cafés, a primary school, boating access, plus nearby vineyards and markets, Woodbridge is ideal for those seeking space, serenity, and a true Tasmanian lifestyle.
Whether you’re drawn to the water, the land, or village life, this property delivers it all, with enough space for family, freedom for your animals, in a peaceful setting.
Inspections are by appointment only, so please call Fiona to discuss.
*** The information contained in this advertisement has been supplied to us from sources we believe to be reliable. However, we cannot guarantee its accuracy and accept no responsibility for any errors or omissions. Prospective buyers are advised to conduct their own enquiries and seek independent advice to verify all details provided. ***
Address
- Address Channel Highway, Woodbridge TAS 7162
- Country Australia
- Province/State Tasmania
- Postal code/ZIP 7162
Overview
- Property ID 19931
- Price Offers Over $1,750,000
- Property status House
- Bedrooms 4
- Bathrooms 2
- Size 244 m2
- Land area 24,800 m2
- Carport 5






































