6 Scott Street, GLEBE TAS 7000
Description
Rich in provenance and architectural character, “The Stables” is a rare surviving remnant of Hobart’s grand 19th-century estates. Originally the coach house and working stables to the circa 1870 mansion “Addlestone,” home of Charles Grant (1831–1901), this remarkable building forms part of Tasmania’s early civic story. Grant was a railway engineer, businessman and Government Minister, as well as Tasmania’s delegate to the Australian Federal Convention. His business interests spanned railways, mining and the iconic Cascade Brewery, and the suburb of Granton honours his contribution to the state.
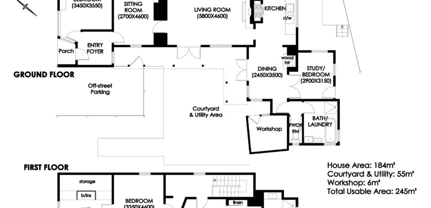
Within these walls, horses were stabled, carriages housed and saddlery kept in what is now the home’s welcoming entrance. Placed on its own title in 1922, “The Stables” has since evolved from equestrian outbuilding to local corner shop, consulting rooms and private residence, with each era adding to its rich narrative. Today it is recognised as a Victorian Free Gothic residence of heritage significance.
The home enjoys an enviable lifestyle position, within short walking distance of Hobart’s CBD, the Royal Hobart Hospital, the Royal Tasmanian Botanical Gardens, Queens Domain, the Hobart Aquatic Centre and nearby sporting facilities — placing everyday convenience alongside historic grandeur.
To own “The Stables” is to become custodian of a landmark property — a tangible link to Tasmania’s formative years, beautifully preserved within one of Hobart’s most tightly held heritage precincts. With off-street parking and a flexible floorplan, this property provides the ideal blend of space, convenience, and lifestyle.
*** The information contained in this advertisement has been supplied to us from sources we believe to be reliable. However, we cannot guarantee its accuracy and accept no responsibility for any errors or omissions. Prospective buyers are advised to conduct their own enquiries and seek independent advice to verify all details provided. ***
Designed for versatility, the home features up to four bedrooms, two bathrooms, and multiple living areas, making it suitable for families, professionals, or investors. The sun-drenched dining and lounge areas open onto a charming terrace through elegant French doors, creating a seamless indoor-outdoor flow with scenic views of Mount Wellington and the city skyline.
Modern comforts include a 90 cm Smeg gas stove and reverse-cycle heating and cooling, ensuring year-round comfort. The combination of generous living spaces and an unbeatable location makes this an exceptional inner-city home. Inspections are by appointment.
Approximate annual outgoings include:
Council Rates $ 3180
Water Rates $ 1350
Address
- Address 6 Scott Street, GLEBE TAS
- Country Australia
- Province/State Tasmania
- City/Town Glebe
- Postal code/ZIP 7000




































